Линия за рязане
Основното оборудване на автоматичната линия за рязане. С автоматично идентифициране на размера и позицията на купчината хартия, автоматично хранене на хартия, функции за рязане и разтоварване, той може бързо да транспортира готовите продукти с различни текстури до предварително определена позиция и автоматично да разтовари хартията от масата до основата на предварително определената височина.
Целият процес на хранене, рязане и разтоварване на хартия е точен и ефективен, намалява интензивността на труда и подобрява ефективността на производството.
Параметър
Видео


Описание на продуктите

Метод за разположение 1

Метод за разположение 2
Автоматична машина за товарач LD-2 / Ld-4
Машина за рязане на хартия QZK 1370M15
Автоматична машина за омагьосване Lg-2 / Lg-4
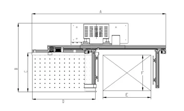
Механични чертежи
Размери
Механични повече подробности
Предишен: Ld-4 Автоматична машина за товарачи
След това: Lg-4 Автоматична машина за омагьосване